rent
House
Ken Only

Property ID : 2015060822

Hakuraku House

Hakuraku, Kanagawa-ku, Yokohama City, Kanagawa Pref.

Special Feature

Residence of modern elegance with a touch of maturity. Spacious patio. Living room filled with sense of freshness.No smoking.



Show more

Property details

Address

Hakuraku, Kanagawa-ku, Yokohama City, Kanagawa Pref. address anchor icon

Area :

Kohoku-NT / Azamino / Shinyokohama

Type

House

Access to

Toyoko Line Higashi-hakuraku Sta. / 7 min. walk
Toyoko Line Hakuraku Sta. / 7 min. walk
Keihin-tohoku Line Higashi-kanagawa Sta. / 16 min. walk
Keihin-kyuko Line Keikyu Higashi-kanag Sta. / 18 min. walk

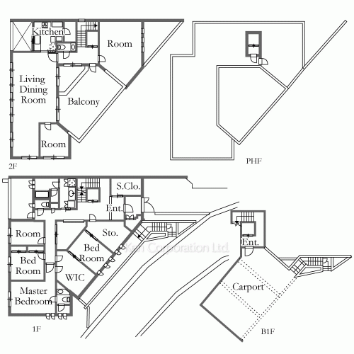
Bedrooms

6 (BR:17.5J / BR:13.0J / BR:8.6J / BR:7.6J / BR:7.1J / BR:6.0J / LD:32.1J / K:5.2J / S:8.2J / S:7.4J)
* 1J = 1.65sq.m. = 17.76sq.ft.

Conditions

Rent
1,600,000 JPY
Management Fee
None
Deposit
1 month rent
Key Money
1 month rent
Parking Space
4 spaces attached
Renewal Fee
None
Date Available
Now
Lease Term
-

Size

341.48 sq.m (3675.6 sq.f)

Construction

RC
2 story building

Completion date

2008-September

Updated : 2026-04-21 / Next update by : 2026-05-05

Features, Equipments, Fixtures

  • Pet
    Negotiable

  • Parking

  • Private
    Yard

  • Terrace

  • Shower
    Toilet

  • Jacuzzi

  • Fitness Gym

  • Damping or
    Seismic Iso.

Contract Terms
Musical Instruments Negotiable, Multiple car parking space negotiable, Pet NOT Negotiable
Bldg. Features
Quiet neighborhood, Security System, Parking Space, Elevator
Room Features
Closet, Walk-In Closet, Good View, Private Garden, Refrigerator, Washer, Dryer, Gas Table, Floor Heating

Local information

Map Map Map Map Map Map Map Map Map Map Map Map Map
Tokyo Tokyo Tokyo Tokyo Tokyo Tokyo Tokyo Yokohama Yokohama Yokohama Yokohama Yokohama Yokohama
1

Central Yokohama

2

Other Yokohama

3

Kawasaki

4

Shonan

5

Zama & mid Kanagawa

6

Others

About This Area

Disclaimer

  • At the conclusion of an agreement to rent a property, Lessee shall consent to the payment of agent commission equivalent to 110% of rent.
  • At the conclusion of an agreement, Lessee must maintain comprehensive Lessee liability insurance.
  • The present status of the Premises shall have precedence in any conflicts over the information provided here.
  • Fees, capabilities, methods, conditions, and any other information related to BS, CS, CATV and Internet differs in each property; please confirm with the provider of each service directly.
  • Fees for using the facilities may be separately charged.
  • We appreciate your understanding in cases where the listed properties are no longer available.
  • Parking: The availability, fee, size, type, or location of parking may differ depending on the kind and size of a vehicle, as well as on occasions. Please ask us for such conditions.
  • Form of Transaction: Brokerage. Licensed by Minister of Land, Infrastructure, Transport, and Tourism (8) 4372
  • Ken Corporation Ltd. 1-2-7, Nishi-Azabu, Minato-ku, Tokyo. TEL 03-5413-5666

[Interior]

1 of
1 Photos

Share This Listing

Call Yokohama Office

Business hours
9:00AM to 6:00PM
[Japan time]

+81-(0)45-650-7895

Ask Us About This Property

Yokohama Office
Contact Us
ASK EMAIL PROPERTY

- Please fill out your Email correctly

- Please fill out your Email