rent
Apartment
New

Property ID : 2026020646

Lefond Progres Yokohama Kannai

Bentendori 1-chome, Naka-ku, Yokohama City, Kanagawa Pref.

Property details

Address

Bentendori 1-chome, Naka-ku, Yokohama City, Kanagawa Pref. address anchor icon

Area :

Minatomirai / Kannai / Bayside

Type

Apartment

Access to

Minato-mirai Line Nihon-odori Sta. / 3 min. walk
Keihin-tohoku Line Kannai Sta. / 7 min. walk

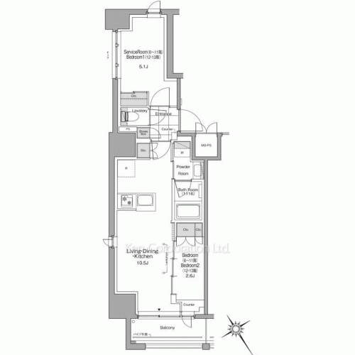
Bedrooms

1 (BR:2.6J / LDK:10.5J / S:5.1J)
* 1J = 1.65sq.m. = 17.76sq.ft.

Conditions

Rent
219,000 JPY
Management Fee
20,000 JPY
Deposit
1 month rent
Key Money
None
Parking Space
-
Renewal Fee
Equivalent to 1 month of new rent
Date Available
2026-03-14
Lease Term
2 years

Size

40.42 sq.m (435.1 sq.f)

Construction

RC
Level 7 of 14 story building

Completion date

2026-March

Updated : 2026-02-17 / Next update by : 2026-03-03

Features, Equipments, Fixtures

  • Pet
    Negotiable

  • Parking

  • Private
    Yard

  • Terrace

  • Shower
    Toilet

  • Jacuzzi

  • Fitness Gym

  • Damoing or
    Seismic Iso.

Contract Terms
Pet Negotiable
Bldg. Features
Auto-lock, Delivery Box, Elevator
Room Features
Counter kitchen, Closet

Local information

Map Map Map Map Map Map Map Map Map Map Map Map Map
Tokyo Tokyo Tokyo Tokyo Tokyo Tokyo Tokyo Yokohama Yokohama Yokohama Yokohama Yokohama Yokohama
1

Central Yokohama

2

Other Yokohama

3

Kawasaki

4

Shonan

5

Zama & mid Kanagawa

6

Others

About This Area

Disclaimer

  • At the conclusion of an agreement to rent a property, Lessee shall consent to the payment of agent commission equivalent to 110% of rent.
  • At the conclusion of an agreement, Lessee must maintain comprehensive Lessee liability insurance.
  • The present status of the Premises shall have precedence in any conflicts over the information provided here.
  • Fees, capabilities, methods, conditions, and any other information related to BS, CS, CATV and Internet differs in each property; please confirm with the provider of each service directly.
  • Fees for using the facilities may be separately charged.
  • We appreciate your understanding in cases where the listed properties are no longer available.
  • Parking: The availability, fee, size, type, or location of parking may differ depending on the kind and size of a vehicle, as well as on occasions. Please ask us for such conditions.
  • Form of Transaction: Brokerage. Licensed by Minister of Land, Infrastructure, Transport, and Tourism (8) 4372
  • Ken Corporation Ltd. 1-2-7, Nishi-Azabu, Minato-ku, Tokyo. TEL 03-5413-5666

[Interior]

1 of
1 Photos

Share This Listing

Call Yokohama Office

Business hours
9:00AM to 6:00PM
[Japan time]

+81-(0)45-650-7895

Ask Us About This Property

Yokohama Office
Contact Us
ASK EMAIL PROPERTY

- Please fill out your Email correctly

- Please fill out your Email