rent
Apartment
New

Property ID : 2025080562

The Tower Yokohama Kitanaka

Kita-nakadori 5-chome, Naka-ku, Yokohama City, Kanagawa Pref.

Property details

Address

Kita-nakadori 5-chome, Naka-ku, Yokohama City, Kanagawa Pref. address anchor icon

Area :

Minatomirai / Kannai / Bayside

Type

Apartment

Access to

Minato-mirai Line Bashamichi Sta. / 2 min. walk
Negishi Line Sakuragicho Sta. / 8 min. walk
Keihin-tohoku Line Sakuragi-cho Sta. / 8 min. walk
Blue Line Line Sakuragicho Sta. / 8 min. walk

Bedrooms

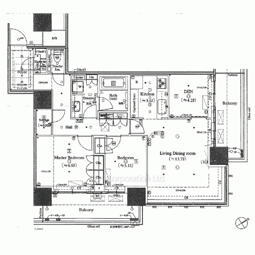
2 (BR:6.9J / BR:5.1J / LD:13.7J / K:3.6J / S:4.2J)
* 1J = 1.65sq.m. = 17.76sq.ft.

Conditions

Rent
560,000 JPY
Management Fee
20,000 JPY
Deposit
1 month rent
Key Money
1 month rent
Parking Space
-
Renewal Fee
None
Date Available
Now
Lease Term
2 years

Size

83.13 sq.m (894.8 sq.f)

Construction

SRC
Level 39 of 59 story building

Completion date

2019-October

Updated : 2026-02-06 / Next update by : 2026-02-20

Features, Equipments, Fixtures

  • Pet
    Negotiable

  • Parking

  • Private
    Yard

  • Terrace

  • Shower
    Toilet

  • Jacuzzi

  • Fitness Gym

  • Damoing or
    Seismic Iso.

Contract Terms
Pet Negotiable
Bldg. Features
Auto-lock, Security System, Damping Structure, Fitness Gym, Sky Lounge, Front Desk, Concierge Service, Delivery Box, Elevator
Room Features
Closet, Corner suite, Good View, Fully Wooden Floor, Gas Table, Floor Heating, Above 20th Floor

Local information

Map Map Map Map Map Map Map Map Map Map Map Map Map
Tokyo Tokyo Tokyo Tokyo Tokyo Tokyo Tokyo Yokohama Yokohama Yokohama Yokohama Yokohama Yokohama
1

Central Yokohama

2

Other Yokohama

3

Kawasaki

4

Shonan

5

Zama & mid Kanagawa

6

Others

About This Area

Disclaimer

  • At the conclusion of an agreement to rent a property, Lessee shall consent to the payment of agent commission equivalent to 110% of rent.
  • At the conclusion of an agreement, Lessee must maintain comprehensive Lessee liability insurance.
  • The present status of the Premises shall have precedence in any conflicts over the information provided here.
  • Fees, capabilities, methods, conditions, and any other information related to BS, CS, CATV and Internet differs in each property; please confirm with the provider of each service directly.
  • Fees for using the facilities may be separately charged.
  • We appreciate your understanding in cases where the listed properties are no longer available.
  • Parking: The availability, fee, size, type, or location of parking may differ depending on the kind and size of a vehicle, as well as on occasions. Please ask us for such conditions.
  • Form of Transaction: Brokerage. Licensed by Minister of Land, Infrastructure, Transport, and Tourism (8) 4372
  • Ken Corporation Ltd. 1-2-7, Nishi-Azabu, Minato-ku, Tokyo. TEL 03-5413-5666

[Interior]

1 of
1 Photos

Share This Listing

Call Yokohama Office

Business hours
9:00AM to 6:00PM
[Japan time]

+81-(0)45-650-7895

Ask Us About This Property

Yokohama Office
Contact Us
ASK EMAIL PROPERTY

- Please fill out your Email correctly

- Please fill out your Email