rent
Apartment
New

Property ID : 2003030309

Douhet Yokohama Ekimae

Kinko-cho, Kanagawa-ku, Yokohama City, Kanagawa Pref.

Property details

Address

Kinko-cho, Kanagawa-ku, Yokohama City, Kanagawa Pref. address anchor icon

Area :

Yokohama station vicinity

Minatomirai / Kannai / Bayside

Type

Apartment

Access to

Keihin-kyuko Line Kanagawa Sta. / 3 min. walk
Tokaido-honsen Line Yokohama Sta. / 5 min. walk
Toyoko Line Tanmachi Sta. / 8 min. walk

Bedrooms

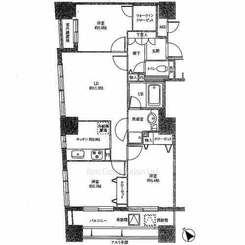
3 (BR:6.4J / BR:5.7J / BR:5.6J / LD:11.3J / K:3.9J)
* 1J = 1.65sq.m. = 17.76sq.ft.

Conditions

Rent
295,000 JPY
Management Fee
10,000 JPY
Deposit
1 month rent
Key Money
None
Parking Space
-
Renewal Fee
Equivalent to 1 month of new rent
Date Available
2026-02-15
Lease Term
2 years

Size

72.63 sq.m (781.8 sq.f)

Construction

RC
Level 13 of 21 story building

Completion date

2003-March

Updated : 2026-01-08 / Next update by : 2026-01-22

Features, Equipments, Fixtures

  • Pet
    Negotiable

  • Parking

  • Private
    Yard

  • Terrace

  • Shower
    Toilet

  • Jacuzzi

  • Fitness Gym

  • Damoing or
    Seismic Iso.

Contract Terms
Pet NOT Negotiable
Bldg. Features
Auto-lock, Base-Isolated-Structure, Delivery Box, Elevator
Room Features
Closet, Walk-In Closet, Optical Internet, Gas Table

Local information

Map Map Map Map Map Map Map Map Map Map Map Map Map
Tokyo Tokyo Tokyo Tokyo Tokyo Tokyo Tokyo Yokohama Yokohama Yokohama Yokohama Yokohama Yokohama
1

Central Yokohama

2

Other Yokohama

3

Kawasaki

4

Shonan

5

Zama & mid Kanagawa

6

Others

About This Area

Disclaimer

  • At the conclusion of an agreement to rent a property, Lessee shall consent to the payment of agent commission equivalent to 110% of rent.
  • At the conclusion of an agreement, Lessee must maintain comprehensive Lessee liability insurance.
  • The present status of the Premises shall have precedence in any conflicts over the information provided here.
  • Fees, capabilities, methods, conditions, and any other information related to BS, CS, CATV and Internet differs in each property; please confirm with the provider of each service directly.
  • Fees for using the facilities may be separately charged.
  • We appreciate your understanding in cases where the listed properties are no longer available.
  • Parking: The availability, fee, size, type, or location of parking may differ depending on the kind and size of a vehicle, as well as on occasions. Please ask us for such conditions.
  • Form of Transaction: Brokerage. Licensed by Minister of Land, Infrastructure, Transport, and Tourism (8) 4372
  • Ken Corporation Ltd. 1-2-7, Nishi-Azabu, Minato-ku, Tokyo. TEL 03-5413-5666

[Interior]

1 of
1 Photos

Share This Listing

Call Yokohama Office

Business hours
9:00AM to 6:00PM
[Japan time]

+81-(0)45-650-7895

Ask Us About This Property

Yokohama Office
Contact Us
ASK EMAIL PROPERTY

- Please fill out your Email correctly

- Please fill out your Email