rent
Apartment
New

Property ID : 2025120075

Terra Sanshi Forest

Wada 3-chome, Suginami-ku, Tokyo

Property details

Address

Wada 3-chome, Suginami-ku, Tokyo address anchor icon

Area :

Kichijoji / Chuo-Line / Suginami

Type

Apartment

Access to

Marunouchi Line Higashi-koenji Sta. / 1 min. walk

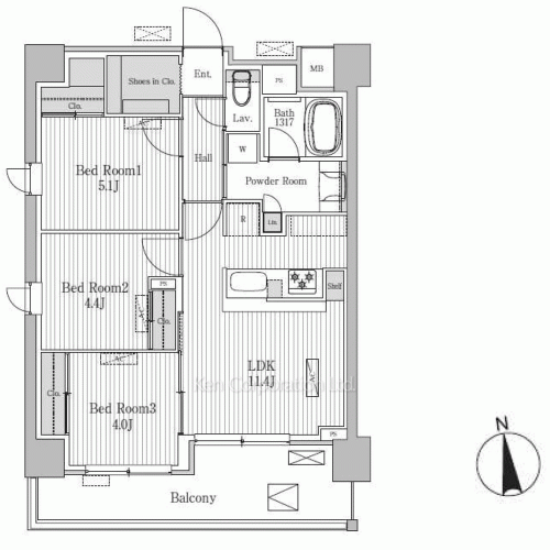
Bedrooms

3 (BR:5.1J / BR:4.4J / BR:4.0J / LDK:11.4J)
* 1J = 1.65sq.m. = 17.76sq.ft.

Conditions

Rent
300,000 JPY
Management Fee
10,000 JPY
Deposit
1 month rent
Key Money
2 months rent
Parking Space
1 space, 41,800 JPY/month
Renewal Fee
Equivalent to 1 month of new rent
Date Available
2026-03-10
Lease Term
2 years

Size

60.4 sq.m (650.1 sq.f)

Construction

RC
Level 8 of 11 story building

Completion date

2026-February

Updated : 2025-12-04 / Next update by : 2025-12-18

Features, Equipments, Fixtures

  • Pet
    Negotiable

  • Parking

  • Private
    Yard

  • Terrace

  • Shower
    Toilet

  • Jacuzzi

  • Fitness Gym

  • Damoing or
    Seismic Iso.

Contract Terms
Pet NOT Negotiable
Bldg. Features
Auto-lock, Parking Space, Delivery Box, Elevator
Room Features
Counter kitchen, Closet, Fully Wooden Floor

Local information

Map Map Map Map Map Map Map Map Map Map Map Map Map
Tokyo Tokyo Tokyo Tokyo Tokyo Tokyo Tokyo Yokohama Yokohama Yokohama Yokohama Yokohama Yokohama
1

Central Area- Minato

2

Central Area- Shibuya

3

Tokyo Station vicinity / Bay Area

4

South Suburb (Meguro / Setagaya)

5

Shinjuku and surroundings

6

West Tokyo

7

Others

About This Area

Disclaimer

  • At the conclusion of an agreement to rent a property, Lessee shall consent to the payment of agent commission equivalent to 110% of rent.
  • At the conclusion of an agreement, Lessee must maintain comprehensive Lessee liability insurance.
  • The present status of the Premises shall have precedence in any conflicts over the information provided here.
  • Fees, capabilities, methods, conditions, and any other information related to BS, CS, CATV and Internet differs in each property; please confirm with the provider of each service directly.
  • Fees for using the facilities may be separately charged.
  • We appreciate your understanding in cases where the listed properties are no longer available.
  • Parking: The availability, fee, size, type, or location of parking may differ depending on the kind and size of a vehicle, as well as on occasions. Please ask us for such conditions.
  • Form of Transaction: Brokerage. Licensed by Minister of Land, Infrastructure, Transport, and Tourism (8) 4372
  • Ken Corporation Ltd. 1-2-7, Nishi-Azabu, Minato-ku, Tokyo. TEL 03-5413-5666

[Interior]

1 of
1 Photos

Share This Listing

Call Tokyo Office

Business hours
9:00AM to 6:00PM
[Japan time]

+81-(0)3-5413-5666

Ask Us About This Property

Tokyo Office
Contact Us
ASK EMAIL PROPERTY

- Please fill out your Email correctly

- Please fill out your Email