Special Feature
Solar panels are installed on the rooftop to generate energy, energy-efficient heating and cooling systems are used, and materials, wooden sashes, and triple-glazing glass.
A low-rise condominium with a total of 86 units standing on a hill in Sangubashi area rich in trees and greenery. The design of Yoyogi Park and the greenery surrounding the exterior connecting to the courtyard is the result of Takenaka's "design" to connect sustainable society and the next generation.
Show more
Property details
Address
                        Yoyogi 4-chome, Shibuya-ku, Tokyo                        
                    
Area :
Shoto / Yoyogi Uehara / Komaba
Type
Apartment
Access to
                        Odakyu Line Sangubashi Sta. / 5 min. walk
Keio-shin Line Hatsudai Sta. / 7 min. walk
Chiyoda Line Yoyogi-koen Sta. / 14 min. walk                    
Bedrooms
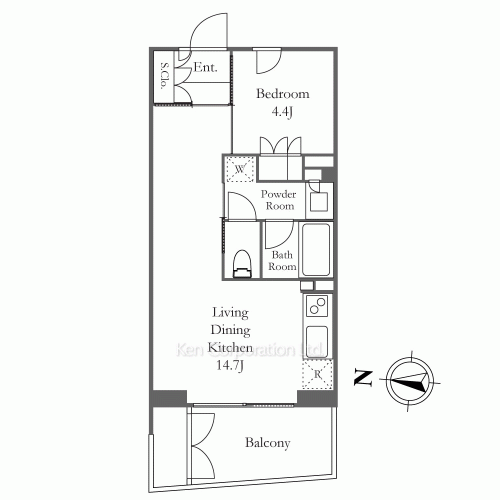
                        1 (BR:4.4J / LDK:14.7J)                        
* 1J = 1.65sq.m. = 17.76sq.ft.
                    
Conditions
- Rent
 - 286,000 JPY
 - Management Fee
 - None
 - Deposit
 - 2 months rent
 - Key Money
 - 1 month rent
 - Parking Space
 - -
 - Renewal Fee
 - Equivalent to 1 month of new rent
 - Date Available
 - Now
 - Lease Term
 - 2 years
 
Size
43.2 sq.m (465 sq.f)
Construction
                        RC
                                                    Level  4 of 4 story building                                            
Completion date
2023-February
Features, Equipments, Fixtures
- 
                    
                        
                    
                    
Pet
Negotiable - 
                    
                        
                    
                    
Parking
 - 
                    
                        
                    
                    
Private
Yard - 
                    
                        
                    
                    
Terrace
 - 
                    
                        
                    
                    
Shower
Toilet - 
                    
                        
                    
                    
Jacuzzi
 - 
                    
                        
                    
                    
Fitness Gym
 - 
                    
                        
                    
                    
Damoing or
Seismic Iso. 
- Contract Terms
 - Pet Negotiable
 - Bldg. Features
 - Quiet neighborhood, Auto-lock, New Earthquake Resistance Requirements Compatible, Delivery Box, Elevator
 - Room Features
 - Closet, Pent floor unit, Fully Wooden Floor, Optical Internet
 
Local information
                            
                            
                            
                            
                            
                            
                            
                            
                            
                            
                            
                            
                            Central Area- Minato
Central Area- Shibuya
Tokyo Station vicinity / Bay Area
South Suburb (Meguro / Setagaya)
Shinjuku and surroundings
West Tokyo
Others
- 
                        
Surrounding Facilities
                                             
Disclaimer
- At the conclusion of an agreement to rent a property, Lessee shall consent to the payment of agent commission equivalent to 110% of rent.
 - At the conclusion of an agreement, Lessee must maintain comprehensive Lessee liability insurance.
 - The present status of the Premises shall have precedence in any conflicts over the information provided here.
 - Fees, capabilities, methods, conditions, and any other information related to BS, CS, CATV and Internet differs in each property; please confirm with the provider of each service directly.
 - Fees for using the facilities may be separately charged.
 - We appreciate your understanding in cases where the listed properties are no longer available.
 - Parking: The availability, fee, size, type, or location of parking may differ depending on the kind and size of a vehicle, as well as on occasions. Please ask us for such conditions.
 - Form of Transaction: Brokerage. Licensed by Minister of Land, Infrastructure, Transport, and Tourism (8) 4372
 - Ken Corporation Ltd. 1-2-7, Nishi-Azabu, Minato-ku, Tokyo. TEL 03-5413-5666