14 Photos

[Exterior / Commons]

1 of 1

[Exterior / Commons]

1 of
1 Photos
Building Thumbnail  Exterior from afar
Building Thumbnail  Exterior from afar
Building Thumbnail  Exterior from afar
Building Thumbnail  Exterior from near by
Building Thumbnail  Building entrance
Building Thumbnail  Building entrance
Building Thumbnail  Building entrance
Building Thumbnail  Front desk
Building Thumbnail  Parking Lot
Building Thumbnail  Courtyard/Greenery
Building Thumbnail  Facility/Equipment
Building Thumbnail  Facility/Equipment
Building Thumbnail  Neighborhood
Building Thumbnail Neighborhood
rent
Apartment
New

Property ID : 202345

Proudcity Kichijoji

Shimo-renjaku 5-chome, Mitaka City, Tokyo

Property details

Address

Shimo-renjaku 5-chome, Mitaka City, Tokyo Map Proudcity Kichijoji

Area :

Kichijoji / Chuo-Line / Suginami

Construction

SRC
8 story building

Access to

Inokashira Line Kichijoji Sta. / 23 min. walk
Chuo Line Kichijoji Sta. / 1 min. to bus stop & 6 min. by bus
Chuo Line Mitaka Sta. / 1 min. to bus stop & 5 min. by bus

Completion date

2020-January

What's available

Sort by
Select an option
Floor Plan Floor Lvl BR Size (sq.m) Rent (JPY)
New
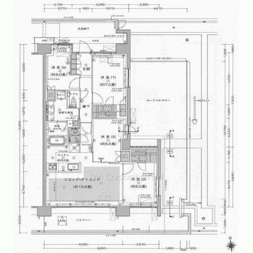
Property Blueprint /rent/tokyoapartment/search/results/202345/2026010901.html 6 of 8 4 90.48 ¥ 320,000 Detail Add to List
New
¥ 320,000

6 of 8

Floor LV

4

Bd

90.48

sq.m

Local information

Map Map Map Map Map Map Map Map Map Map Map Map Map
Tokyo Tokyo Tokyo Tokyo Tokyo Tokyo Yokohama Yokohama Yokohama Yokohama Yokohama Yokohama
  • 1

    Central Area- Minato

  • 2

    Central Area- Shibuya

  • 3

    Tokyo Station vicinity / Bay Area

  • 4

    South Suburb (Meguro / Setagaya)

  • 5

    Shinjuku and surroundings

  • 6

    West Tokyo

  • 7

    Others

  • About this area

Disclaimer

  • At the conclusion of an agreement to rent a property, Lessee shall consent to the payment of agent commission equivalent to 110% of rent.
  • At the conclusion of an agreement, Lessee must maintain comprehensive Lessee liability insurance.
  • The present status of the Premises shall have precedence in any conflicts over the information provided here.
  • Fees, capabilities, methods, conditions, and any other information related to BS, CS, CATV and Internet differs in each property; please confirm with the provider of each service directly.
  • Fees for using the facilities may be separately charged.
  • We appreciate your understanding in cases where the listed properties are no longer available.
  • Parking: The availability, fee, size, type, or location of parking may differ depending on the kind and size of a vehicle, as well as on occasions. Please ask us for such conditions.
  • Form of Transaction: Brokerage. Licensed by Minister of Land, Infrastructure, Transport, and Tourism (8) 4372
  • Ken Corporation Ltd. 1-2-7, Nishi-Azabu, Minato-ku, Tokyo. TEL 03-5413-5666
Share
About This Property

+81-(0)3-5413-5666

Tokyo City 9:00 AM - 6:00 PM [JST]

Contact Us

Share This Listing

Call Tokyo City

Business hours
9:00AM to 6:00PM
[Japan time]

+81-(0)3-5413-5666

Ask Us About This Property

Tokyo City
Contact Us