rent
Apartment
New

Property ID : 2025120229

Lefond Progres Hongo 3-chome

Hongo 3-chome, Bunkyo-ku, Tokyo

Property details

Address

Hongo 3-chome, Bunkyo-ku, Tokyo address anchor icon

Area :

Yotsuya / Ichigaya / Bunkyou ward

Type

Apartment

Access to

Toei Oedo Line Hongo-sanchome Sta. / 4 min. walk
Marunouchi Line Hongo-sanchome Sta. / 6 min. walk
Chiyoda Line Yushima Sta. / 10 min. walk

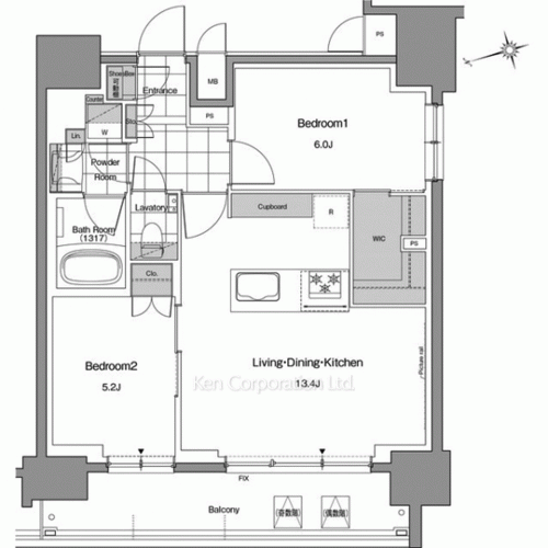
Bedrooms

2 (BR:6.0J / BR:5.2J / LDK:13.4J)
* 1J = 1.65sq.m. = 17.76sq.ft.

Conditions

Rent
373,000 JPY
Management Fee
20,000 JPY
Deposit
1 month rent
Key Money
None
Parking Space
-
Renewal Fee
None
Date Available
Now
Lease Term
Fixed term for 2 years

Size

56.8 sq.m (611.4 sq.f)

Construction

RC
Level 11 of 14 story building

Completion date

2025-November

Updated : 2025-12-10 / Next update by : 2025-12-24

Features, Equipments, Fixtures

  • Pet
    Negotiable

  • Parking

  • Private
    Yard

  • Terrace

  • Shower
    Toilet

  • Jacuzzi

  • Fitness Gym

  • Damoing or
    Seismic Iso.

Contract Terms
Pet Negotiable
Bldg. Features
Auto-lock, Delivery Box, Elevator
Room Features
Counter kitchen, Closet, Walk-In Closet

Local information

Map Map Map Map Map Map Map Map Map Map Map Map Map
Tokyo Tokyo Tokyo Tokyo Tokyo Tokyo Tokyo Yokohama Yokohama Yokohama Yokohama Yokohama Yokohama
1

Central Area- Minato

2

Central Area- Shibuya

3

Tokyo Station vicinity / Bay Area

4

South Suburb (Meguro / Setagaya)

5

Shinjuku and surroundings

6

West Tokyo

7

Others

About This Area

Disclaimer

  • At the conclusion of an agreement to rent a property, Lessee shall consent to the payment of agent commission equivalent to 110% of rent.
  • At the conclusion of an agreement, Lessee must maintain comprehensive Lessee liability insurance.
  • The present status of the Premises shall have precedence in any conflicts over the information provided here.
  • Fees, capabilities, methods, conditions, and any other information related to BS, CS, CATV and Internet differs in each property; please confirm with the provider of each service directly.
  • Fees for using the facilities may be separately charged.
  • We appreciate your understanding in cases where the listed properties are no longer available.
  • Parking: The availability, fee, size, type, or location of parking may differ depending on the kind and size of a vehicle, as well as on occasions. Please ask us for such conditions.
  • Form of Transaction: Brokerage. Licensed by Minister of Land, Infrastructure, Transport, and Tourism (8) 4372
  • Ken Corporation Ltd. 1-2-7, Nishi-Azabu, Minato-ku, Tokyo. TEL 03-5413-5666

[Interior]

1 of
1 Photos

Share This Listing

Call Tokyo Office

Business hours
9:00AM to 6:00PM
[Japan time]

+81-(0)3-5413-5666

Ask Us About This Property

Tokyo Office
Contact Us
ASK EMAIL PROPERTY

- Please fill out your Email correctly

- Please fill out your Email