Cedar Plaza Megurohon-cho
Megurohon-cho 1-chome, Meguro-ku, Tokyo
Property details
Address
Megurohon-cho 1-chome, Meguro-ku, Tokyo
Area :
Toyoko Line / Jiyugaoka / Sangen-Jaya
Construction
RC
5 story building
Access to
Toyoko Line Gakugei-daigaku Sta. / 14 min. walk
Meguro Line Musashi-koyama Sta. / 15 min. walk
Completion date
2025-July
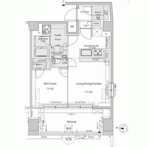
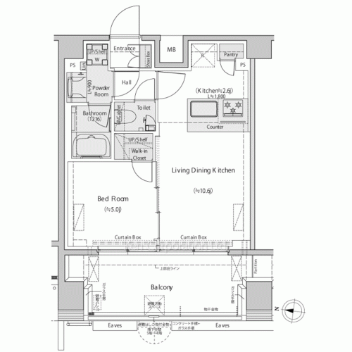
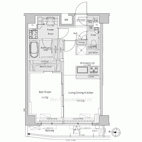
What's available
Local information












-
1
Central Area- Minato
-
2
Central Area- Shibuya
-
3
Tokyo Station vicinity / Bay Area
-
4
South Suburb (Meguro / Setagaya)
-
5
Shinjuku and surroundings
-
6
West Tokyo
-
7
Others
About this area
-
Surrounding Facilities
Saint Mary's International School
http://www.smis.ac.jp/Seisen International School
http://www.seisen.com/
Disclaimer
- At the conclusion of an agreement to rent a property, Lessee shall consent to the payment of agent commission equivalent to 110% of rent.
- At the conclusion of an agreement, Lessee must maintain comprehensive Lessee liability insurance.
- The present status of the Premises shall have precedence in any conflicts over the information provided here.
- Fees, capabilities, methods, conditions, and any other information related to BS, CS, CATV and Internet differs in each property; please confirm with the provider of each service directly.
- Fees for using the facilities may be separately charged.
- We appreciate your understanding in cases where the listed properties are no longer available.
- Parking: The availability, fee, size, type, or location of parking may differ depending on the kind and size of a vehicle, as well as on occasions. Please ask us for such conditions.
- Form of Transaction: Brokerage. Licensed by Minister of Land, Infrastructure, Transport, and Tourism (8) 4372
- Ken Corporation Ltd. 1-2-7, Nishi-Azabu, Minato-ku, Tokyo. TEL 03-5413-5666