rent
Apartment

Property ID : 2025091395

Park Axis Bunkyohongo

Hongo 5-chome, Bunkyo-ku, Tokyo

Property details

Address

Hongo 5-chome, Bunkyo-ku, Tokyo address anchor icon

Area :

Yotsuya / Ichigaya / Bunkyou ward

Type

Apartment

Access to

Toei Oedo Line Hongo-sanchome Sta. / 6 min. walk
Marunouchi Line Hongo-sanchome Sta. / 6 min. walk

Bedrooms

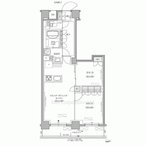
2 (BR:6.6J / BR:5.0J / LDK:14.3J)
* 1J = 1.65sq.m. = 17.76sq.ft.

Conditions

Rent
435,000 JPY
Management Fee
15,000 JPY
Deposit
1 month rent
Key Money
None
Parking Space
-
Renewal Fee
None
Date Available
Now
Lease Term
Fixed term for 2 years

Size

61.67 sq.m (663.8 sq.f)

Construction

RC
Level 4 of 8 story building

Completion date

2025-May

Updated : 2025-10-30 / Next update by : 2025-11-13

Features, Equipments, Fixtures

  • Pet
    Negotiable

  • Parking

  • Private
    Yard

  • Terrace

  • Shower
    Toilet

  • Jacuzzi

  • Fitness Gym

  • Damoing or
    Seismic Iso.

Contract Terms
Musical Instruments Negotiable, Pet Negotiable
Bldg. Features
Auto-lock, Delivery Box, Elevator
Room Features
Counter kitchen, Closet

Local information

Map Map Map Map Map Map Map Map Map Map Map Map Map
Tokyo Tokyo Tokyo Tokyo Tokyo Tokyo Tokyo Yokohama Yokohama Yokohama Yokohama Yokohama Yokohama
1

Central Area- Minato

2

Central Area- Shibuya

3

Tokyo Station vicinity / Bay Area

4

South Suburb (Meguro / Setagaya)

5

Shinjuku and surroundings

6

West Tokyo

7

Others

About This Area

Disclaimer

  • At the conclusion of an agreement to rent a property, Lessee shall consent to the payment of agent commission equivalent to 110% of rent.
  • At the conclusion of an agreement, Lessee must maintain comprehensive Lessee liability insurance.
  • The present status of the Premises shall have precedence in any conflicts over the information provided here.
  • Fees, capabilities, methods, conditions, and any other information related to BS, CS, CATV and Internet differs in each property; please confirm with the provider of each service directly.
  • Fees for using the facilities may be separately charged.
  • We appreciate your understanding in cases where the listed properties are no longer available.
  • Parking: The availability, fee, size, type, or location of parking may differ depending on the kind and size of a vehicle, as well as on occasions. Please ask us for such conditions.
  • Form of Transaction: Brokerage. Licensed by Minister of Land, Infrastructure, Transport, and Tourism (8) 4372
  • Ken Corporation Ltd. 1-2-7, Nishi-Azabu, Minato-ku, Tokyo. TEL 03-5413-5666

[Interior]

1 of
1 Photos

Share This Listing

Call Tokyo Office

Business hours
9:00AM to 6:00PM
[Japan time]

+81-(0)3-5413-5666

Ask Us About This Property

Tokyo Office
Contact Us
ASK EMAIL PROPERTY

- Please fill out your Email correctly

- Please fill out your Email