14 Photos

[Exterior]

1 of 1

[Exterior]

1 of
1 Photos
Building Thumbnail  Exterior from afar
Building Thumbnail  Exterior from afar
Building Thumbnail  Exterior from afar
Building Thumbnail  Exterior from near by
Building Thumbnail  Exterior from near by
Building Thumbnail Building entrance
Building Thumbnail  Building entrance
Building Thumbnail  Building entrance
Building Thumbnail  Parking Lot
Building Thumbnail  Bicycle-parking Space
Building Thumbnail Mailbox
Building Thumbnail Delivery Box
Building Thumbnail Common Facilities
Building Thumbnail Building nameplate
rent
Apartment
New

Property ID : 208544

Park Axis Jinbocho

Kandajinbo-cho 1-chome, Chiyoda-ku, Tokyo

Property details

Address

Kandajinbo-cho 1-chome, Chiyoda-ku, Tokyo Map Park Axis Jinbocho

Area :

Ginza / Nihonbashi / Kanda

Construction

RC
14 story building

Access to

Toeishinjuku Line Jinbo-cho Sta. / 4 min. walk
Chuo Line Suidobashi Sta. / 6 min. walk
Hanzoumon Line Kudanshita Sta. / 9 min. walk

Completion date

2024-April

What's available

Sort by
Select an option
Floor Plan Floor Lvl BR Size (sq.m) Rent (JPY)
New
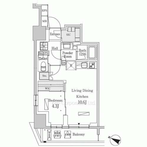
Property Blueprint /rent/tokyoapartment/search/results/208544/2024030188.html 3 of 14 2 52.2 ¥ 322,000 Detail Add to List
New
¥ 322,000

3 of 14

Floor LV

2

Bd

52.2

sq.m

Local information

Map Map Map Map Map Map Map Map Map Map Map Map Map
Tokyo Tokyo Tokyo Tokyo Tokyo Tokyo Yokohama Yokohama Yokohama Yokohama Yokohama Yokohama
  • 1

    Central Area- Minato

  • 2

    Central Area- Shibuya

  • 3

    Tokyo Station vicinity / Bay Area

  • 4

    South Suburb (Meguro / Setagaya)

  • 5

    Shinjuku and surroundings

  • 6

    West Tokyo

  • 7

    Others

  • About this area

Disclaimer

  • At the conclusion of an agreement to rent a property, Lessee shall consent to the payment of agent commission equivalent to 110% of rent.
  • At the conclusion of an agreement, Lessee must maintain comprehensive Lessee liability insurance.
  • The present status of the Premises shall have precedence in any conflicts over the information provided here.
  • Fees, capabilities, methods, conditions, and any other information related to BS, CS, CATV and Internet differs in each property; please confirm with the provider of each service directly.
  • Fees for using the facilities may be separately charged.
  • We appreciate your understanding in cases where the listed properties are no longer available.
  • Parking: The availability, fee, size, type, or location of parking may differ depending on the kind and size of a vehicle, as well as on occasions. Please ask us for such conditions.
  • Form of Transaction: Brokerage. Licensed by Minister of Land, Infrastructure, Transport, and Tourism (8) 4372
  • Ken Corporation Ltd. 1-2-7, Nishi-Azabu, Minato-ku, Tokyo. TEL 03-5413-5666
Share
About This Property

+81-(0)3-5413-5666

Tokyo City 9:00 AM - 6:00 PM [JST]

Contact Us

Share This Listing

Call Tokyo City

Business hours
9:00AM to 6:00PM
[Japan time]

+81-(0)3-5413-5666

Ask Us About This Property

Tokyo City
Contact Us