rent
Apartment
Ken Only
New

Property ID : 2021010473

Coteau Nishi Azabu

Nishi-azabu 4-chome, Minato-ku, Tokyo

Special Feature

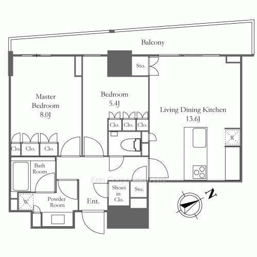
This 2LDK unit can be used for a wide range of purposes, such as combination of master bedroom and room for teleworking, or master bedroom and kid's room.



Condominium completed in March 2021. 4-minute walk from Hiroo Station (approx. 350m). Lounge in the entrance lobby whereresidents are welcomed by concierge from 8:00 to 20:00. Fit ness center on 1st floor. 8 minutes walk from Roppongi Hills(700m), 7 minutes from Seijo supermarket (550m). Free inter net access.

Show more

Property details

Address

Nishi-azabu 4-chome, Minato-ku, Tokyo address anchor icon

Area :

Azabu / Hiroo

Type

Apartment

Access to

Hibiya Line Hiroo Sta. / 5 min. walk
Toei Oedo Line Roppongi Sta. / 15 min. walk
Chiyoda Line Nogizaka Sta. / 16 min. walk
Nanboku Line Azabu-juban Sta. / 19 min. walk

Bedrooms

2 (BR:8.0J / BR:5.4J / LDK:13.6J)
* 1J = 1.65sq.m. = 17.76sq.ft.

Conditions

Rent
490,000 JPY
Management Fee
None
Deposit
2 months rent
Key Money
1 month rent
Parking Space
1 space, 55,000 JPY/month
Renewal Fee
None
Date Available
2026-02-28
Lease Term
Fixed term for 2 years

Size

67.35 sq.m (724.9 sq.f)

Construction

RC
Level 6 of 16 story building

Completion date

2021-February

Updated : 2026-01-21 / Next update by : 2026-02-04

Features, Equipments, Fixtures

  • Pet
    Negotiable

  • Parking

  • Private
    Yard

  • Terrace

  • Shower
    Toilet

  • Jacuzzi

  • Fitness Gym

  • Damoing or
    Seismic Iso.

Contract Terms
Pet Negotiable
Bldg. Features
Auto-lock, Security System, New Earthquake Resistance Requirements Compatible, Parking Space, Fitness Gym, Front Desk, Concierge Service, Delivery Box, Elevator
Room Features
Counter kitchen, Closet, Fully Wooden Floor, Optical Internet, Gas Table, Floor Heating

Local information

Map Map Map Map Map Map Map Map Map Map Map Map Map
Tokyo Tokyo Tokyo Tokyo Tokyo Tokyo Tokyo Yokohama Yokohama Yokohama Yokohama Yokohama Yokohama
1

Central Area- Minato

2

Central Area- Shibuya

3

Tokyo Station vicinity / Bay Area

4

South Suburb (Meguro / Setagaya)

5

Shinjuku and surroundings

6

West Tokyo

7

Others

About This Area

Disclaimer

  • At the conclusion of an agreement to rent a property, Lessee shall consent to the payment of agent commission equivalent to 110% of rent.
  • At the conclusion of an agreement, Lessee must maintain comprehensive Lessee liability insurance.
  • The present status of the Premises shall have precedence in any conflicts over the information provided here.
  • Fees, capabilities, methods, conditions, and any other information related to BS, CS, CATV and Internet differs in each property; please confirm with the provider of each service directly.
  • Fees for using the facilities may be separately charged.
  • We appreciate your understanding in cases where the listed properties are no longer available.
  • Parking: The availability, fee, size, type, or location of parking may differ depending on the kind and size of a vehicle, as well as on occasions. Please ask us for such conditions.
  • Form of Transaction: Brokerage. Licensed by Minister of Land, Infrastructure, Transport, and Tourism (8) 4372
  • Ken Corporation Ltd. 1-2-7, Nishi-Azabu, Minato-ku, Tokyo. TEL 03-5413-5666

[Interior]

1 of
1 Photos

Share This Listing

Call Tokyo Office

Business hours
9:00AM to 6:00PM
[Japan time]

+81-(0)3-5413-5666

Ask Us About This Property

Tokyo Office
Contact Us
ASK EMAIL PROPERTY

- Please fill out your Email correctly

- Please fill out your Email