Special Feature
Newly built all-electric condominium with 60 floors of seismic controlled construction. This unit was sold and is now leased out. There are a variety of common areas such as guest room, fitness gym, and party room.
Property details
Address
Nishi-shinjuku 5-chome, Shinjuku-ku, Tokyo
Area :
Shinjuku / Mejiro / Ikebukuro
Type
Apartment
Access to
Toei Oedo Line Nishi-shinjuku 5-cho Sta. / 8 min. walk
Marunouchi Line Nishi-shinjuku Sta. / 9 min. walk
Toei Oedo Line Tochomae Sta. / 10 min. walk
Yamanote Line Shinjuku Sta. / 18 min. walk
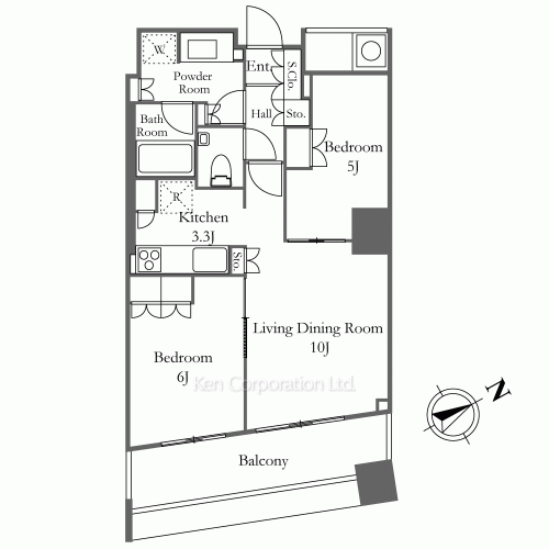
Bedrooms
2 (BR:6.0J / BR:5.0J / LD:10.0J / K:3.3J)
* 1J = 1.65sq.m. = 17.76sq.ft.
Conditions
- Rent
- 330,000 JPY
- Management Fee
- None
- Deposit
- 1 month rent
- Key Money
- 1 month rent
- Parking Space
- 1 space, 24,200 JPY/month
- Renewal Fee
- Equivalent to 1 month of new rent
- Date Available
- 2025-11-15
- Lease Term
- 2 years
Size
56.39 sq.m (607 sq.f)
Construction
RC
Level 36 of 60 story building
Completion date
2017-August
Features, Equipments, Fixtures
-
Pet
Negotiable -
Parking
-
Private
Yard -
Terrace
-
Shower
Toilet -
Jacuzzi
-
Fitness Gym
-
Damoing or
Seismic Iso.
- Contract Terms
- Musical Instruments Negotiable, Pet NOT Negotiable
- Bldg. Features
- Auto-lock, Security System, New Earthquake Resistance Requirements Compatible, Parking Space, Fitness Gym, Sky Lounge, Front Desk, Concierge Service, Delivery Box, Elevator
- Room Features
- Closet, Floor Heating, Above 20th Floor
Local information













Central Area- Minato
Central Area- Shibuya
Tokyo Station vicinity / Bay Area
South Suburb (Meguro / Setagaya)
Shinjuku and surroundings
West Tokyo
Others
Disclaimer
- At the conclusion of an agreement to rent a property, Lessee shall consent to the payment of agent commission equivalent to 110% of rent.
- At the conclusion of an agreement, Lessee must maintain comprehensive Lessee liability insurance.
- The present status of the Premises shall have precedence in any conflicts over the information provided here.
- Fees, capabilities, methods, conditions, and any other information related to BS, CS, CATV and Internet differs in each property; please confirm with the provider of each service directly.
- Fees for using the facilities may be separately charged.
- We appreciate your understanding in cases where the listed properties are no longer available.
- Parking: The availability, fee, size, type, or location of parking may differ depending on the kind and size of a vehicle, as well as on occasions. Please ask us for such conditions.
- Form of Transaction: Brokerage. Licensed by Minister of Land, Infrastructure, Transport, and Tourism (8) 4372
- Ken Corporation Ltd. 1-2-7, Nishi-Azabu, Minato-ku, Tokyo. TEL 03-5413-5666