
Property details
Address
Nishi-azabu 3-chome, Minato-ku, Tokyo
Area :
Azabu / Hiroo
Type
Apartment
Access to
Hibiya Line Hiroo Sta. / 4 min. walk
Toei Oedo Line Azabu-juban Sta. / 13 min. walk
Hibiya Line Roppongi Sta. / 14 min. walk
Nanboku Line Azabu-juban Sta. / 17 min. walk
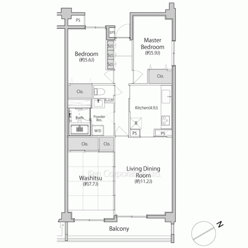
Bedrooms
3 (BR:5.9J / BR:5.6J / Tatami Rm:7.7J / LD:11.2J / K:4.9J)
* 1J = 1.65sq.m. = 17.76sq.ft.
Conditions
- Rent
- 445,000 JPY
- Management Fee
- 10,000 JPY
- Deposit
- 2 months rent
- Key Money
- 1 month rent
- Parking Space
- -
- Renewal Fee
- None
- Date Available
- 2025-11-29
- Lease Term
- Fixed term for 2 years
Size
80.74 sq.m (869.1 sq.f)
Construction
SRC
Level 3 of 9 story building
Completion date
1994-April
Features, Equipments, Fixtures
-
Pet
Negotiable -
Parking
-
Private
Yard -
Terrace
-
Shower
Toilet -
Jacuzzi
-
Fitness Gym
-
Damoing or
Seismic Iso.
- Contract Terms
- Pet Negotiable
- Bldg. Features
- Auto-lock, New Earthquake Resistance Requirements Compatible, Delivery Box, Elevator
- Room Features
- Closet, Corner suite, Optical Internet, Gas Table
Local information













Central Area- Minato
Central Area- Shibuya
Tokyo Station vicinity / Bay Area
South Suburb (Meguro / Setagaya)
Shinjuku and surroundings
West Tokyo
Others
-
Surrounding Facilities
Tokyo International School
http://www.tokyois.com/HIROO GAKUEN Junior/Senior High School
http://www.hiroogakuen.ed.jp/english/international-eng.html -
Related Article
Disclaimer
- At the conclusion of an agreement to rent a property, Lessee shall consent to the payment of agent commission equivalent to 110% of rent.
- At the conclusion of an agreement, Lessee must maintain comprehensive Lessee liability insurance.
- The present status of the Premises shall have precedence in any conflicts over the information provided here.
- Fees, capabilities, methods, conditions, and any other information related to BS, CS, CATV and Internet differs in each property; please confirm with the provider of each service directly.
- Fees for using the facilities may be separately charged.
- We appreciate your understanding in cases where the listed properties are no longer available.
- Parking: The availability, fee, size, type, or location of parking may differ depending on the kind and size of a vehicle, as well as on occasions. Please ask us for such conditions.
- Form of Transaction: Brokerage. Licensed by Minister of Land, Infrastructure, Transport, and Tourism (8) 4372
- Ken Corporation Ltd. 1-2-7, Nishi-Azabu, Minato-ku, Tokyo. TEL 03-5413-5666