
Property details
Address
Kachidoki 1-chome, Chuo-ku, Tokyo
Area :
Bay Area (Tsukishima / Harumi / Toyosu)
Type
Apartment
Access to
Toei Oedo Line Kachidoki Sta. / 3 min. walk
Yurakuchou Line Tsukishima Sta. / 10 min. walk
Hibiya Line Tsukiji Sta. / 12 min. walk
Yamanote Line Tokyo Sta. / 2 min. to Kachidoki Bridge Minamizume bus stop & 15 min. by bus
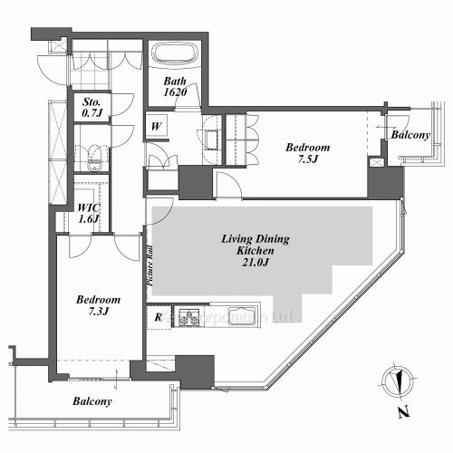
Bedrooms
2 (BR:7.5J / BR:7.3J / LDK:21.0J)
* 1J = 1.65sq.m. = 17.76sq.ft.
Conditions
- Rent
- 480,000 JPY
- Management Fee
- 23,000 JPY
- Deposit
- 1 month rent
- Key Money
- 1 month rent
- Parking Space
- 1 space, 35,200 JPY/month
- Renewal Fee
- None
- Date Available
- Now
- Lease Term
- Fixed term for 2 years
Size
84.82 sq.m (913 sq.f)
Construction
RC
Level 29 of 45 story building
Completion date
2011-January
Features, Equipments, Fixtures
-
Pet
Negotiable -
Parking
-
Private
Yard -
Terrace
-
Shower
Toilet -
Jacuzzi
-
Fitness Gym
-
Damoing or
Seismic Iso.
- Contract Terms
- Pet NOT Negotiable
- Bldg. Features
- Auto-lock, Base-Isolated-Structure, Parking Space, Fitness Gym, Sky Lounge, Front Desk, Concierge Service, Delivery Box, Elevator
- Room Features
- Counter kitchen, Closet, Walk-In Closet, Corner suite, Fully Wooden Floor, Optical Internet, Gas Table, Floor Heating, Above 20th Floor
Local information













Central Area- Minato
Central Area- Shibuya
Tokyo Station vicinity / Bay Area
South Suburb (Meguro / Setagaya)
Shinjuku and surroundings
West Tokyo
Others
-
Surrounding Facilities
Disclaimer
- At the conclusion of an agreement to rent a property, Lessee shall consent to the payment of agent commission equivalent to 110% of rent.
- At the conclusion of an agreement, Lessee must maintain comprehensive Lessee liability insurance.
- The present status of the Premises shall have precedence in any conflicts over the information provided here.
- Fees, capabilities, methods, conditions, and any other information related to BS, CS, CATV and Internet differs in each property; please confirm with the provider of each service directly.
- Fees for using the facilities may be separately charged.
- We appreciate your understanding in cases where the listed properties are no longer available.
- Parking: The availability, fee, size, type, or location of parking may differ depending on the kind and size of a vehicle, as well as on occasions. Please ask us for such conditions.
- Form of Transaction: Brokerage. Licensed by Minister of Land, Infrastructure, Transport, and Tourism (8) 4372
- Ken Corporation Ltd. 1-2-7, Nishi-Azabu, Minato-ku, Tokyo. TEL 03-5413-5666