office
Office

Property ID : 1036150196

Seiroka Tower 29F

Akashi-cho, Chuo-ku, Tokyo

Property details

Address

Akashi-cho, Chuo-ku, Tokyo

Available for

Office

Access to

Hibiya Line Tsukiji Sta. / 7 min. walk
Yurakuchou Line Shin-tomicho Sta. / 8 min. walk
Keiyo Line Hacchobori Sta. / 11 min. walk

Rent

Monthly Rent(Total)
Ask
Rent per Tsubo
Ask

Maintenance Fee

Monthly Rent(Total)
Ask
Rent per Tsubo
Ask

Conditions

Deposit
Ask
Key Money
None
Depreciation
None
Renewal Fee
None
Date Available
Now
Lease Term
Fixed Term 3 years

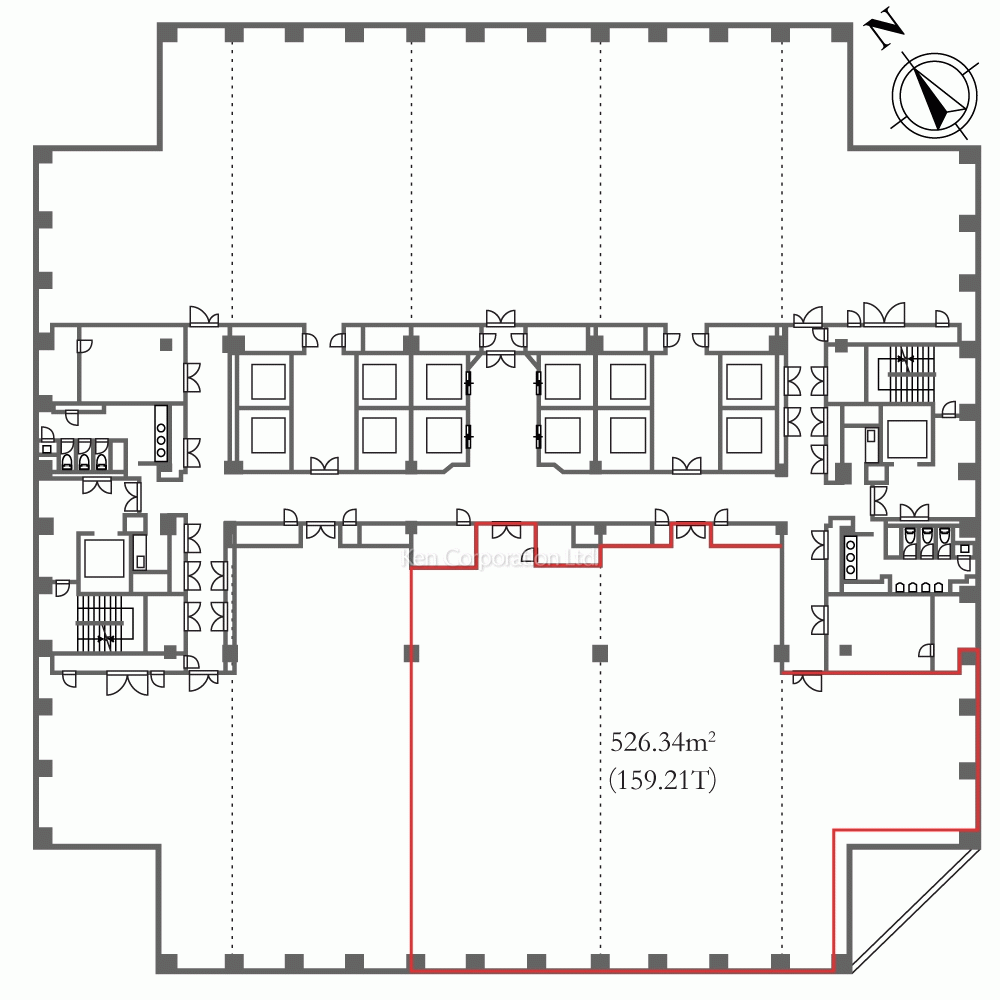
Size

526.34 Sq.m. (159.21 Tsubo)

Floor

29F ,# 2908

Construction

Steel Frame
51 stories above ground,
4 stories under ground

Completion date

1994-May

Updated : 2025-11-07 / Next update by : -

Features, Equipments, Fixtures

  • Designers

  • Whole
    buildings

  • Large scale
    buildings

  • 3m+
    ceiling

  • Ground
    level

  • New constr.

Features
Elevator, Security system, Individual A/C Control, Parking attached to building

Disclaimer

  • At the conclusion of an agreement to rent a property, Lessee shall consent to the payment of agent commission equivalent to 110% of rent.
  • At the conclusion of an agreement, Lessee must maintain comprehensive Lessee liability insurance.
  • The present status of the Premises shall have precedence in any conflicts over the information provided here.
  • Fees, capabilities, methods, conditions, and any other information related to BS, CS, CATV and Internet differs in each property; please confirm with the provider of each service directly.
  • Fees for using the facilities may be separately charged.
  • We appreciate your understanding in cases where the listed properties are no longer available.
  • Parking: The availability, fee, size, type, or location of parking may differ depending on the kind and size of a vehicle, as well as on occasions. Please ask us for such conditions.
  • Form of Transaction: Brokerage. Licensed by Minister of Land, Infrastructure, Transport, and Tourism (8) 4372
  • Ken Corporation Ltd. 1-2-7, Nishi-Azabu, Minato-ku, Tokyo. TEL 03-5413-5666

[Interior]

1 of
1 Photos

Share This Listing

Call Tokyo Office

Business hours
9:00AM to 6:00PM
[Japan time]

+81-(0)3-5413-5666

Ask Us About This Property

Tokyo Office
Contact Us
ASK EMAIL PROPERTY

- Please fill out your Email correctly

- Please fill out your Email