14 Photos

[Exterior]

1 of 1

[Exterior]

1 of
1 Photos
Building Thumbnail  Exterior from afar
Building Thumbnail  Exterior from afar
Building Thumbnail  Exterior from afar
Building Thumbnail  Exterior from afar
Building Thumbnail  Exterior from near by
Building Thumbnail  Parking Lot
Building Thumbnail  Parking Lot
Building Thumbnail  Parking Lot
Building Thumbnail Rooftop Terrace
Building Thumbnail Rooftop Terrace
Building Thumbnail Rooftop Terrace
Building Thumbnail View from building
Building Thumbnail Road on the facade
Building Thumbnail Road on the facade
rent
House
New

Property ID : 213547

Kami-meguro 3-chome House

Kami-meguro 3-chome, Meguro-ku, Tokyo

Property details

Address

Kami-meguro 3-chome, Meguro-ku, Tokyo Map Kami-meguro 3-chome House

Area :

Toyoko Line / Jiyugaoka / Sangen-Jaya

Construction

Wooden
3 story building

Access to

Hibiya Line Naka-meguro Sta. / 5 min. walk
Toyoko Line Daikan-yama Sta. / 13 min. walk
Denentoshi Line Ikejiri-ohashi Sta. / 19 min. walk

Completion date

2025-April

What's available

Sort by
Select an option
Floor Plan Floor Lvl BR Size (sq.m) Rent (JPY)
Ken Only
New
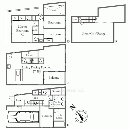
Property Blueprint /rent/tokyoapartment/search/results/213547/2025100423.html of 3 5 180.43 ¥ 2,000,000 Detail Add to List
Ken Only
New
¥ 2,000,000

of 3

Floor LV

5

Bd

180.43

sq.m

Local information

Map Map Map Map Map Map Map Map Map Map Map Map Map
Tokyo Tokyo Tokyo Tokyo Tokyo Tokyo Yokohama Yokohama Yokohama Yokohama Yokohama Yokohama
  • 1

    Central Area- Minato

  • 2

    Central Area- Shibuya

  • 3

    Tokyo Station vicinity / Bay Area

  • 4

    South Suburb (Meguro / Setagaya)

  • 5

    Shinjuku and surroundings

  • 6

    West Tokyo

  • 7

    Others

  • About this area

Disclaimer

  • At the conclusion of an agreement to rent a property, Lessee shall consent to the payment of agent commission equivalent to 110% of rent.
  • At the conclusion of an agreement, Lessee must maintain comprehensive Lessee liability insurance.
  • The present status of the Premises shall have precedence in any conflicts over the information provided here.
  • Fees, capabilities, methods, conditions, and any other information related to BS, CS, CATV and Internet differs in each property; please confirm with the provider of each service directly.
  • Fees for using the facilities may be separately charged.
  • We appreciate your understanding in cases where the listed properties are no longer available.
  • Parking: The availability, fee, size, type, or location of parking may differ depending on the kind and size of a vehicle, as well as on occasions. Please ask us for such conditions.
  • Form of Transaction: Brokerage. Licensed by Minister of Land, Infrastructure, Transport, and Tourism (8) 4372
  • Ken Corporation Ltd. 1-2-7, Nishi-Azabu, Minato-ku, Tokyo. TEL 03-5413-5666
Share
About This Property

+81-(0)3-5413-5666

Tokyo City 9:00 AM - 6:00 PM [JST]

Contact Us

Share This Listing

Call Tokyo City

Business hours
9:00AM to 6:00PM
[Japan time]

+81-(0)3-5413-5666

Ask Us About This Property

Tokyo City
Contact Us